Hier finden Sie diverse Projekte für die ich Planunterlagen, Renderings oder ähnliches gezeichnet und ertellt habe.



mein Wirken: Digitalisierung von bestehenden Bauplänen im Massstab 1:50 sowie
Aufarbeitung / Vereinfachung der Grundrisspläne für die einzelnen Eigentümer

mein Wirken: komplette Erarbeitung der Wettbewerbsunterlagen in Eigenregie
Erstellung der Vorprojektpläne, Baubeschrieb, Renderings, Projektdokumentation


mein Wirken: komplette Erarbeitung der Verkaufsdokumentation inkl. Baubeschrieb, digitalisieren der Ausführungspläne, Erstellen von "Vorher-Nachher"-Renderings für möglichen Umbau

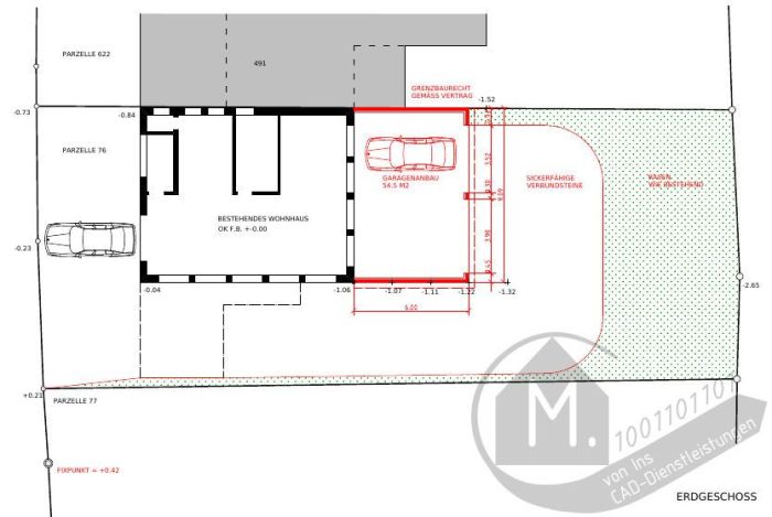
mein Wirken: komplette Erarbeitung der Baugesuchsunterlagen (Pläne, Baugesuchsformulare)


mein Wirken: komplette Erarbeitung der Ausführungspläne


mein Wirken: Erarbeitung der Baugesuchspläne (Grundrisse, Fassaden, Schnitte, Kanalisation)
Erstellen des Architekturmodells


mein Wirken: Erarbeitung der Vorprojektpläne in enger Zusammenarbeit mit Architekt Professor Heinz Schöttli


mein Wirken: Erarbeitung der Vorprojektpläne in enger Zusammenarbeit mit Architekt Professor Heinz Schöttli

mein Wirken: Erarbeitung der Vorprojektpläne

mein Wirken: erstellen der Vorprojektpläne und des Renderings

mein Wirken: erstellen des Renderings, komplette Modellierung der Einrichtung aus 2D-Plänen

mein Wirken: erstellen der Vorprojektpläne und des Renderings

mein Wirken: erstellen des Renderings, komplette Modellierung

mein Wirken: erstellen des Renderings, komplette Modellierung